このイベントの開催期間は終了致しました。
  • お子様大歓迎、駐車スペースあり
  • 土地探し、注文住宅、高性能住宅

【橋本市】 中庭を中心に描く、こだわりの間取りと高性能な平屋|完成見学会

 
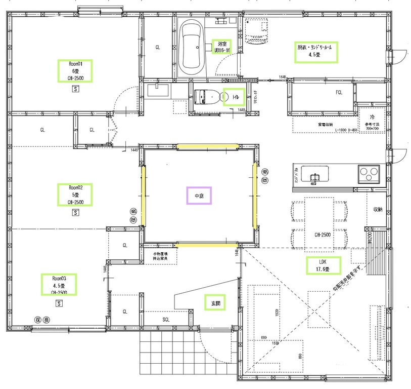
家の中心に『中庭』を備えた、こだわりの平屋が完成しました。
LDKや居室、玄関ホール、洗面が中庭を囲むように配置され、どこにいても空と光を感じられる設計です。視線が抜ける心地よさと、家族がゆるやかにつながる距離感が魅力。
間取りの工夫と見た目のデザイン、そして年中快適な室内環境すべてが私たちの大切にしている家づくりのテーマです。
中庭を中心に広がる暮らしのシーンを、ぜひ見学会で体感してください。

完成見学会

10:00〜17:00

和歌山県橋本市高野口町名古曽

見どころ

プライベートな中庭のある平屋

外からの視線を気にせず、家族だけの時間を楽しめる中庭。ロの字の中心に配置されたこの空間は、プライベートで光と風を感じられる贅沢な場所です。家の中心に窓があり、外を眺めることができる。家の中心に『空』があるだけで、毎日の暮らしに余白と安らぎが生まれます。
 

勾配天井と造作デスクのあるLDK

LDKは勾配天井で高さと広がりを感じられる開放的な空間に。造作デスクを設け、家族がそれぞれの時間を過ごせる多目的スペースとしても活躍します。光が差し込むリビングは自然と家族が集まる心地よい場所。
空間の広がりと木のぬくもりが、穏やかな時間を演出します。
 

汚れに強い、フロアタイルのキッチン

料理や水まわりの作業で汚れやすいキッチンには、機能美を兼ね備えたフロアタイルを採用。水や油に強く、お手入れもさっとひと拭き。見た目も高級感があり、清潔さと上質さをを両立しています。家事の中心となるキッチンだからこそ、見た目と実用性のバランスにこだわりました。

解決!可愛くおしゃれなトイレ収納

トイレの収納、どうしたらおしゃれに収納できる?って人多いです。今回はミラタップのピッタラでトイレにもこだわりを。必要な収納をスマートに備えながら、空間を美しく保つデザイン。毎日使う場所だからこそ、清潔感とデザイン性の両方を大切に考えました。

おうちの性能値

UA値(外皮平均熱貫流率)0.4
C値(相当隙間面積)0.11
 
UA値とC値は『家の性能』を示す大事な指標です
 
 

完成見学会のメリット

こんな方におすすめ

▪家族の気配を感じられるプライベートな中庭がほしい
▪オシャレで機能的な間取りの参考にしたい
▪快適でストレスなく安心安全に暮らせるお家を建てたい

お知らせ

完全予約制の完成見学会となります。
 

イベント概要

タイトル 【橋本市】 中庭を中心に描く、こだわりの間取りと高性能な平屋|完成見学会
開催日時
2025年11月15日(土)〜2025年11月24日(月)
10:00〜17:00
開催場所 和歌山県橋本市高野口町名古曽
会社ホームページ http://kihokuchisho.co.jp/