【愛知県春日井市】ムニカデザインの家 高台の絶景を楽しむ28坪のリアルサイズな平屋 完成見学会
【4日間限定イベント】子育て家族にうれしい工夫がいっぱい!GX志向型の平屋が完成しました!
高台に建つ28坪の平屋は、窓から街並みを一望できる開放感が魅力。
シンプルだけど印象的な外観は、街に自然にとけ込みながらも、
思わず足を止めて見たくなる存在感があります。
シンプルだけど印象的な外観は、街に自然にとけ込みながらも、
思わず足を止めて見たくなる存在感があります。
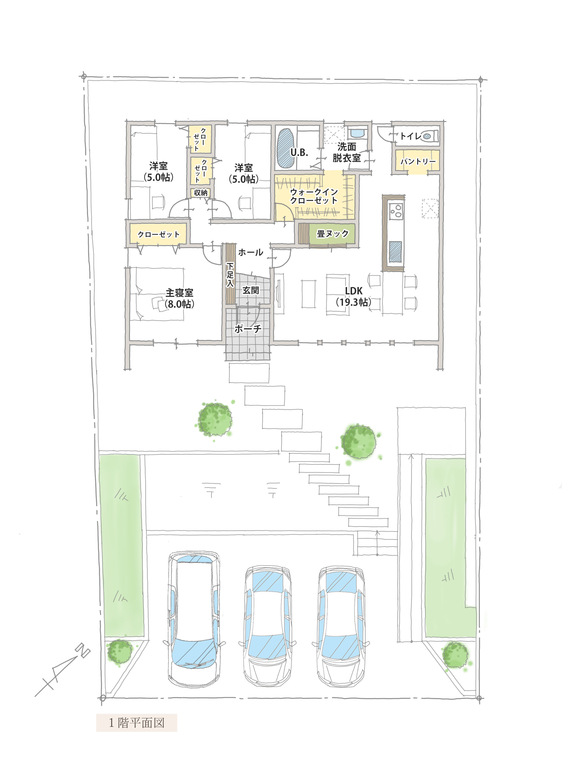
中に入ると、3LDKで4人家族にちょうどいい広さ。
19帖の広々LDKは明るい光が差し込み、自然と家族が集まります。
「ファミリークローゼット」や「大容量パントリー」、
「行き止まりのない回遊キッチン」
そしてちょっとしたおこもり感を楽しめる「畳ヌック」など、
子育て世代が「欲しい!」と思うアイデアがたっぷり。
車が3〜4台停められる広い駐車場もあるから、来客が多くても安心です。
そしてちょっとしたおこもり感を楽しめる「畳ヌック」など、
子育て世代が「欲しい!」と思うアイデアがたっぷり。
車が3〜4台停められる広い駐車場もあるから、来客が多くても安心です。
さらに太陽光6.6kWと断熱等級6の高性能仕様で、
夏は涼しく、冬はあったか。電気代を抑えながら一年中快適に過ごせます。
夏は涼しく、冬はあったか。電気代を抑えながら一年中快適に過ごせます。
「家族が心からくつろげて、環境にもやさしい」
そんな暮らしを、ぜひ体感してみませんか?
「我が家がいちばん」と思える平屋の暮らしが、ここから始まります。
そんな暮らしを、ぜひ体感してみませんか?
「我が家がいちばん」と思える平屋の暮らしが、ここから始まります。
完成見学会
10:00〜17:00
愛知県春日井市

見どころ
街並みを一望できる絶景ロケーション
大きな窓から春日井市の街並みを見渡せる、開放感あふれる暮らし。
ファミリークローゼット×大容量パントリーで片付けラクラク
衣類や食材をまとめて収納でき、毎日の家事がグンと効率的に。
畳ヌックでおこもり時間も楽しめる癒しスペース
読書や昼寝にぴったりな、ちょっとした隠れ家コーナー。
一年中快適&光熱費を抑える高性能
太陽光6.6kW×断熱等級6のGX志向型住宅で、夏は涼しく冬はあたたか、環境にも家計にもやさしい省エネ仕様。
28坪リアルサイズ!4人家族にちょうどいい平屋
広すぎず狭すぎない等身大のサイズ感で、リアルな暮らしを体感できます。
また、3~4台停められる広々駐車スペースがあり、来客時もスムーズ!
イベント概要
| タイトル | 【愛知県春日井市】ムニカデザインの家 高台の絶景を楽しむ28坪のリアルサイズな平屋 完成見学会 | 
|---|---|
| 開催日時 | 
 2025年11月08日(土)〜2025年11月16日(日) 10:00〜17:00  | 
| 会社ホームページ | https://mahoroba-home.co.jp/ | 
