予約可能日時
※日付を選ぶと予約時刻を選択できるようになります。
見どころ
佐賀県小城市に全国初の”TRETTIO VALO(平屋)”が建設されて3年が経ちました。
長年、モデルハウスとしてたくさんの方にご来場いただきましたが、現在売り出し中でもあります。
販売後は見学ができなくなりますのでご興味ありましたらお早めにご予約・お問い合わせの程よろしくお願い申し上げます。

住む人のライフステージを
住空間の焦点に
時代とともに、人々の住まいや暮らしは変わっていきますが、より良い暮らしの本質は変わりません。
冬が長い北欧では、長時間を室内で快適に過ごせるように、住まいのデザインに多くの工夫が施されています。
TRETTIOはそんな北欧の考え方をお手本に、自分たちらしいライフスタイルのため、シンプルで無駄のないデザインと、自然素材を多く取り入れた空間をお届けします。
VALO(バロ)はフィンランド後で光を意味します。
自然と共に生きる人の生活の原点に立ち返り、心地よさを求めて変化する、自分らしく暮らしのプロセスを楽しんでいける、そんな商品化住宅です。

シャープで印象的な軒がほどよく陽の光を遮り
室内に美しい陰影を生み出す
勾配のある軒は、室内に取り込む陽の光を調整します。やわらかな光が室内に広がり、気持ちの良い空間を生み出します。
心地よく過ごすための工夫が随所に散りばめられているVALO。

真っすぐに伸びた土間と一体のホールを中心に
家族が集まるLDKと個々のスペースが広がる
玄関の扉を開けて真っすぐに伸びる土間と一体の通路。
伸びた先に縦長の窓が配置され抜け感が美しい、庭やアプローチなどの設計も楽しくなりそうなプランです。
この通路が、家族が集まるLDKと個々のスペースを分けています。
さりげなく繋がる空間は奥行きを感じさせ、おおらかで程よい距離感を生み出します。

気持ちよく1日をスタートさせる
解放的で明るい空間
ここが家族の集まる場所、家の中心となるダイニングスペースで開放的な陽の光が、
通常より高い勾配天井から続く連窓から差し込みます。
より高く設計することもできた勾配天井もあえて抑えたのは、ディテールを十四しているから。窓と構造体を一体化させ、インテリアの一部として見せ、エクステリアなどの見たいものだけに視線をフォーカスさせる、
建築的な技術ポイントが随所に隠されています。
この細かな部分が、一時的な流行に左右されずにいつまでも長く愛着を持ち続けられるような、
普遍的な住空間を実現します。

あえて高さを抑えた天井はコンパクトで上品な印象
低く抑えられた天井の高さは、平屋ならではの横に広がる空間の中では一切の圧迫感はなく、
コンパクトで上品は印象を与えます。
1部屋はロフト付きの3部屋に仕切るなど、家族構成に合わせて家族に必要なものを自分らしく選んでプラス。
VALOの家は基本からお好みで、ご家族が設計を自由にお選びいただけます。
マップ
佐賀県小城市小城町畑田
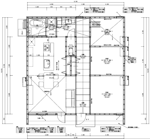
間取り
概要
| タイトル | ”TRETTIO VALO(平屋)” のモデルハウス見学会 |
|---|---|
| 開催日時 |
2025-04-02 ~ 2025-05-06
10:00〜17:00 |
| 開催場所 | 佐賀県小城市小城町畑田 |
| 種別 | 予約制 |
| 種類 | モデルハウス |
| 会社ホームページ | http://www.oo-ken.com/ |