【2月23日まで】開放感と機能性で快適に暮らす家 #吹抜 #回遊動線
子育て世代が最高に使い勝手の良い4LDKのお家

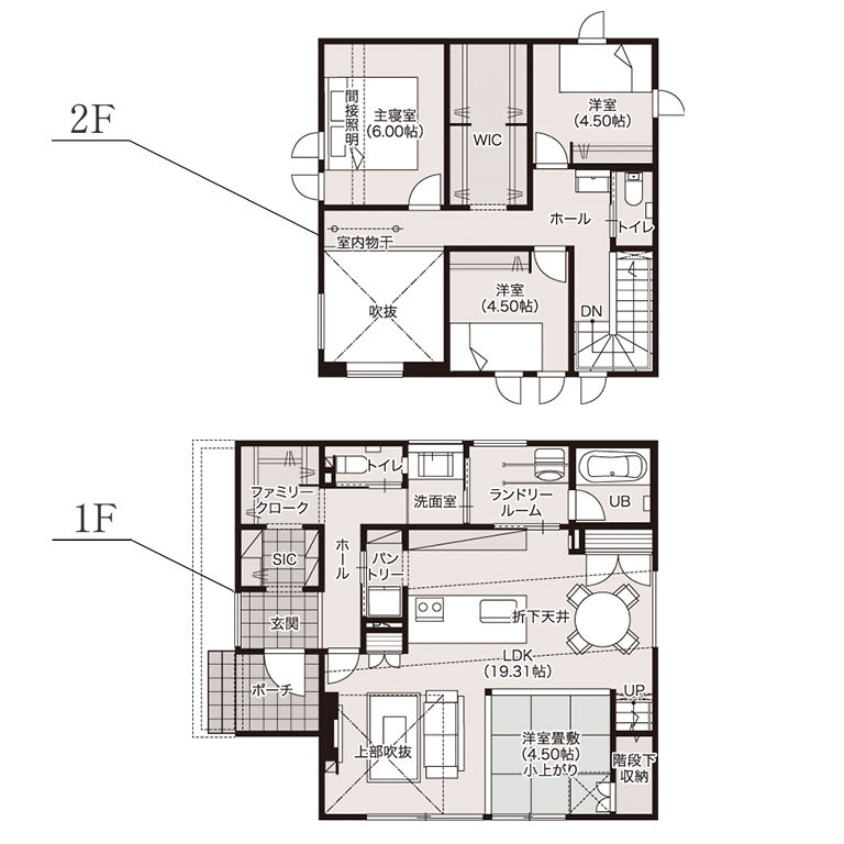
空間に奥行きを生む吹抜デザインと、玄関から目的別に分かれる回遊動線。
毎日の中にゆとりある時間を生み出す、暮らしやすさの工夫が随所に詰まった住まいを、ぜひ見学会でご体感ください。
毎日の中にゆとりある時間を生み出す、暮らしやすさの工夫が随所に詰まった住まいを、ぜひ見学会でご体感ください。

完成見学会
見どころ
吹抜の開放感とくつろぎのLDK
視線が上へと抜けるダイナミックな吹抜が、LDKに圧倒的な開放感をもたらします。
折下げ天井がおしゃれなキッチンスペース
家族が集まるリビングには折下天井を施し、空間に安らぎをプラス。
間接照明の柔らかな光が空間に奥行きを演出し、格別な上質感を演出します。
何にでも使える万能性抜群の畳コーナー
リビングと繋がる小あがりの和室は、扉で区切らない緩やかな繋がりが魅力。
お子様の遊び場や、ちょっとしたくつろぎスペースとして、暮らしに合わせて多目的に活用できます。
家事ラクを実現する回遊動線
玄関からLDKへは、目的別にルートを使い分けられる回遊動線の設計です。
帰宅時はシューズインクローゼットからファミリークロークを通って廊下に上がれるため、外出・帰宅時の時短を実現します。
さらに、洗濯動線や料理動線もスムーズに繋がり、移動距離を最小限に抑える設計で、毎日の家事をスマートにします。
帰宅時はシューズインクローゼットからファミリークロークを通って廊下に上がれるため、外出・帰宅時の時短を実現します。
さらに、洗濯動線や料理動線もスムーズに繋がり、移動距離を最小限に抑える設計で、毎日の家事をスマートにします。
家族みんなのための、ゆとりある収納設計
玄関にシューズインクローゼットとファミリークロークを隣接させました。
外で使うコートやバッグを帰宅してすぐに収納できるため、リビングにモノを持ち込まず、常にすっきりとした状態を保てます。
外で使うコートやバッグを帰宅してすぐに収納できるため、リビングにモノを持ち込まず、常にすっきりとした状態を保てます。
キッチン隣には大容量パントリーを作りました。
玄関ホールからもアクセスできるので、買い物から帰ってすぐに収納できます。
2階には、季節の衣類や家族の共有物をまとめて収納できる広々としたウォークインクローゼットを配置。
収納場所を集約することで、暮らしやすさを支えます。
【PLAN DATA】
1F床面積/ 67.90㎡(20.54坪)
2F床面積/ 45.54㎡(13.78坪)
延床面積/113.44㎡(34.32坪)
施工面積/124.20㎡(37.57坪)
南玄関・4LDK+ランドリールーム・ファミリークローク
施主様のこだわりを追体験!
リアルな注文住宅の実例。見られるのは今だけ!
まずはご見学だけでもOKです。
ご希望の方には、土地の選び方や資金・間取りの組み立て方など、経験豊富なスタッフがご案内します♪
お知らせ
⭐️アマゾンギフトカード10,000円分プレゼント!⭐️

【注意事項】
- ※コンチネンタルホームに初めて来場される方が対象です。
- ※初回来場時に5,000円分、2回目のご来店(事前審査申し込み時)に5,000円分お渡しさせて頂きます。
- ※お一人でご来店の場合は2回目ご来店(事前審査申し込み時)に進呈いたします。
- ※ご来場プレゼントは1組様につき1点の進呈となります。
- ※新築住宅をご検討/身分証明書をご提示頂ける方に限ります。
- ※詳しくはスタッフまでお問い合わせください。
イベント概要
| タイトル | 【2月23日まで】開放感と機能性で快適に暮らす家 #吹抜 #回遊動線 |
|---|---|
| 開催日時 |
〜2026年02月23日(月) 10:00〜17:00 |
| 開催場所 | 茨城県筑西市玉戸 |
| 会社ホームページ | https://www.contihome.com |
