【2月8日まで】安心と快適が続く 高性能&家事ラクな家 #ファミクロ #家事ラク
暮らしやすさと性能の両立を叶える家
「家事が驚くほどスムーズになる間取り」と「24時間365日快適な室内環境」。
暮らしやすさと性能、その両方を妥協せずに叶えた住まいが完成しました。
断熱等級6という高い基本性能に加え、全館空調Airia、制振ダンパーevoltzが実現する、家族の健康と安心を守る暮らしをご体感ください。
こんな方にオススメ
- 家づくりの具体的なイメージをつけたい
- 家事をスムーズにこなしたい
- 災害に強い高性能な家にしたい
- 電気代も抑えたい
完成見学会
見どころ
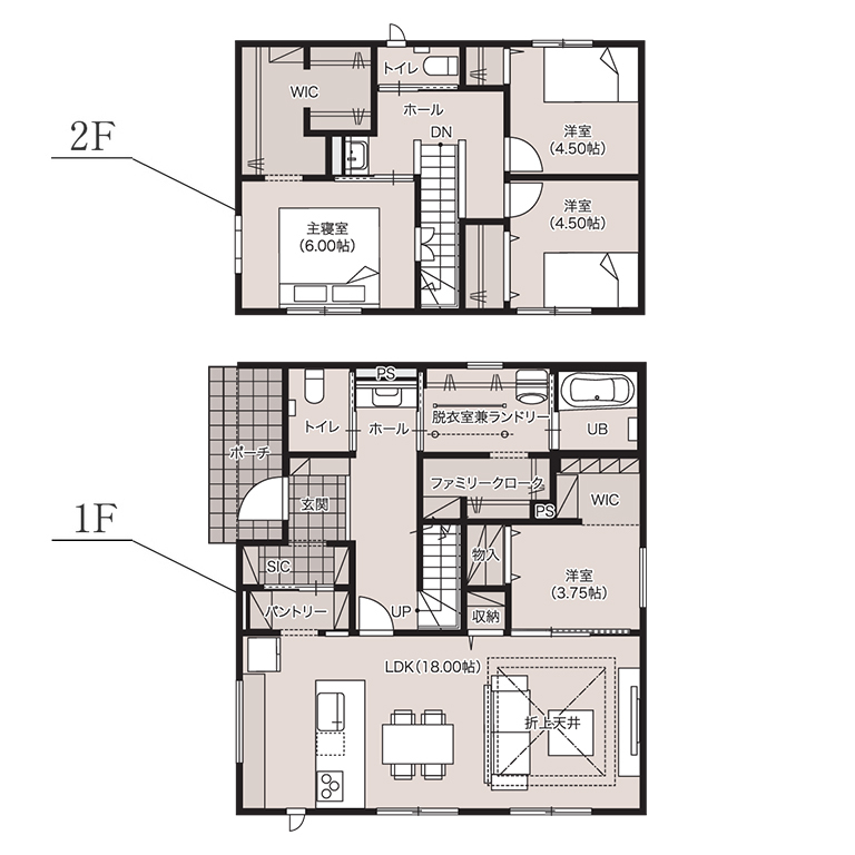
家族の時間が心地よく流れる、ちょうどいい距離感のLDK
明るい光が差し込むLDKは、家族がどこにいてもお互いの気配を感じられる、落ち着いた空間。
内装のアクセントとなる建具や、暮らしを彩る照明など、目に見える細部までこだわりを詰め込みました。
玄関からパントリーへ直結の賢い間取り
玄関からシューズインクロゼット、そしてパントリーを通ってキッチンへ直行できる動線を確保。
重たい荷物もすぐに片付けられるから、買い物帰りのバタバタが驚くほどスムーズになります。
「洗う・干す・畳む・しまう」が1箇所で完結する洗濯動線
脱衣所兼ランドリールームとファミリークロークを隣り合わせに配置。
洗濯物を洗って、その場で干して、収納は隣のファミクロへ。
毎日の洗濯動作を最短距離に集約することで、面倒な移動の手間をグッと軽減しました。
家計の味方、大容量ソーラーパネル&蓄電池を搭載
8.50kWの大容量ソーラーパネル&12.7kWの蓄電池搭載!
ゆとりの発電量で、給湯や空調の電気代が気になる季節でも気兼ねなく快適に過ごすことができます。
余った電気は、売らずに溜める時代。
電気の自家消費で電気代を最小限に抑えながら、夜間や万が一の停電時でも蓄電池に溜めた電気を使うことができます。
繰り返す地震にも安心。最新の制振ダンパー搭載
耐震性を高くするだけでなく、耐震性を長持ちさせる。
地震の力を吸収する制振ダンパー「evoltz」搭載で、繰り返す地震にも安心の住まいです。
施主様のこだわりを追体験!
リアルな注文住宅の実例をみながら、新生活をイメージしてみませんか?
土地の選び方や資金、間取りの組み立て方など、経験豊富なスタッフがご案内します♪
【PLAN DATA】
お知らせ

【注意事項】
- ※コンチネンタルホームに初めて来場される方が対象です。
- ※初回来場時に5,000円分、2回目のご来店(事前審査申し込み時)に5,000円分お渡しさせて頂きます。
- ※お一人でご来店の場合は2回目ご来店(事前審査申し込み時)に進呈いたします。
- ※ご来場プレゼントは1組様につき1点の進呈となります。
- ※新築住宅をご検討/身分証明書をご提示頂ける方に限ります。
- ※詳しくはスタッフまでお問い合わせください。
イベント概要
| タイトル | 【2月8日まで】安心と快適が続く 高性能&家事ラクな家 #ファミクロ #家事ラク |
|---|---|
| 開催日時 |
2026年01月24日(土)〜2026年02月08日(日) 10:00〜17:00 ※日によって異なります |
| 開催場所 | 群馬県太田市東長岡町 |
| 会社ホームページ | https://www.contihome.com |