大船渡市 赤沢展示場見学会 《ランドリールームがあるお家》
展示場
見どころ
大船渡町赤沢でランドリールームがあるモデルハウスを公開中です!
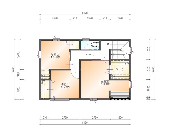
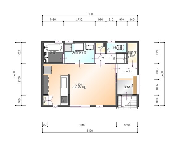
《26坪3LDKの2階建て♪ ランドリールームがあり家事動線もスムーズです♪》
床や扉はダークな色使いでシックなカラーのLDKです♪
収納も多くキッチンにパントリー(食糧庫)もあります!
また、キッチン隣にランドリールームがあり
家事動線もスムーズです。
収納も多くキッチンにパントリー(食糧庫)もあります!
また、キッチン隣にランドリールームがあり
家事動線もスムーズです。
-3.jpg)
玄関にはインパクトのあるアクセントクロスでおしゃれな印象に♪
お出かけ前も、帰ってきた後も、印象的な空間です!
お出かけ前も、帰ってきた後も、印象的な空間です!
-3.jpg)
2階寝室にはカウンタースペースを設けています。
在宅ワークはもちろん、お出かけ前のメイクや読書にも便利です。
在宅ワークはもちろん、お出かけ前のメイクや読書にも便利です。
-3.jpg)
完全予約制となりますのでこのHPまたはお電話でご予約の上
ご家族揃ってお越し下さい。
・。*・。*・。*・。*・。*・。*・。*・。*・。*・
一生に一度のお家づくりだから後悔してほしくない…
プロの立場から、お客様一人ひとりへ最適な提案をさせていただきます。
ぜひ一緒にお家づくりをスタートさせてみませんか?
みなさまのご来場をお待ちしております。
・。*・。*・。*・。*・。*・。*・。*・。*・。*・
一生に一度のお家づくりだから後悔してほしくない…
プロの立場から、お客様一人ひとりへ最適な提案をさせていただきます。
ぜひ一緒にお家づくりをスタートさせてみませんか?
みなさまのご来場をお待ちしております。
・。*・。*・。*・。*・。*・。*・。*・。*・。*・
お知らせ

イベント概要
| タイトル | 大船渡市 赤沢展示場見学会 《ランドリールームがあるお家》 |
|---|---|
| 開催日時 |
〜開催中 10:00〜17:00 |
| 開催場所 | 岩手県大船渡市大船渡町字赤沢 |
| 会社ホームページ | https://sirius-eyefulhome-c.jp/ |