予約可能日時
※日付を選ぶと予約時刻を選択できるようになります。
見どころ




.jpg)
<物件概要>
延床面積:36.69坪(121.31㎡)
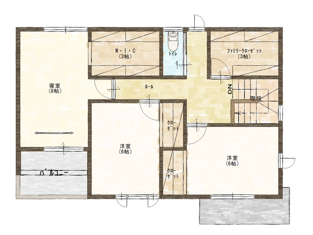
4LDKの2階建て
延床面積:36.69坪(121.31㎡)
4LDKの2階建て
<住まいの見学会の見どころ>
01 日当たり良好のLDK

・LDKが南向きの為、常に太陽の光が差し込んできます。
・お庭で遊んでいるお子さんと会話を楽しむことができます。
02 1階6.0帖の洋間

・LDKと合わせると21帖以上の大空間が生まれます
・将来のご夫婦の寝室としても使用する事ができます。
03 大容量収納

・1階に多数の収納があるので、急な来客にも困りません。
・2階に大型WICが2つも御座います。将来、荷物が増えても安心できます










マップ
宮城県多賀城市八幡4丁目
キャンペーン情報


《ご来場特典キャンペーン対象イベントです》
■2/8(土)~期間中の新規ご予約・ご来場で、最大8,000円分のギフト券をプレゼント!
🎁Amazonギフト5000円分:来場者アンケートカードQRコードよりご応募、4月上旬メールにて進呈
QUOカード3000円分:第2回目の面談時に担当スタッフより進呈
■さらに、お子さまに嬉しいオリジナルキャラクターグッズ(きっずなー)もプレゼント✨数に限りがございますので、ご予約はお早めに!
ご家族みなさんでのご来場お待ちしています😊
※進呈には条件があります/各店先着で20名様/Amazonギフト券の送付は3月上旬ごろとなります/おもちゃは、なくなり次第終了とさせていただきます
ご家族みなさんでのご来場お待ちしています😊
間取り
概要
| タイトル | 【多賀城市八幡4丁目】4LDK 39坪!子育てが楽しくなる住まい見学会🏠 |
|---|---|
| 開催日時 |
2025-02-27 ~ 2025-03-02
10:00〜17:00 |
| 開催場所 | 宮城県多賀城市八幡4丁目 |
| 種別 | 予約承認制 |
| 種類 | 完成見学会 |
| 会社ホームページ | https://www.all-eyefulhomenavi.com/itoukensetsu/sendaihigashi/index.html |