冬暖かく、夏涼しいを体感する見学会
冬暖かく、夏涼しいを体感する見学会
『✨🏠冬暖かく、夏涼しいを体感する見学会🏠✨』
2026年1月にGRAND OPENした新コンセプトハウス「Lykke(リッケ)」にて開催!
🍃2人の女性設計士が考えた、自分時間も家族時間も大切にできる”ほっとくつろげる家”
✔家事も育児もラクに、心地よく暮らせるおうち効率的な家事動線&充実収納
✔デザイン性と使いやすさを兼ね備えた間取りや仕様に
✔北欧×和モダンの”ジャパンディスタイル”
✔LDKや寝室、水回りを1階に集約した半平屋のような暮らし方

是非、ご家族でお越しください!
見て、感じて、体感できるコンセプトハウスです✨
---------------------------------------------------------------------------
【冬暖かく、夏涼しいを体感する見学会】
■会場:長浜市平方町 CONCEPT HOUSE「Lykke」
■日程:2026年2月21日(土)-23日(月・祝)
■時間:10:00~17:00
📅予約優先制
この機会をお見逃しなく!
お子様連れOK!
ご一緒にお越しください♪
モデルハウス
見どころ
ジャパンディスタイル
北欧×和モダンのジャパンディスタイル。
木のぬくもりや自然素材を活かし、シンプルでありながらも落ち着きと温かさを感じられる住空間
木のぬくもりや自然素材を活かし、シンプルでありながらも落ち着きと温かさを感じられる住空間
デザイン性と使いやすさを兼ね備え、心地よく暮らせるおうち効率的な家事動線&充実収納
デザイン性と使いやすさを両立し、
毎日の家事がスムーズになる動線設計。
心地よく、すっきり暮らせる住まいです🏠✨
毎日の家事がスムーズになる動線設計。
心地よく、すっきり暮らせる住まいです🏠✨
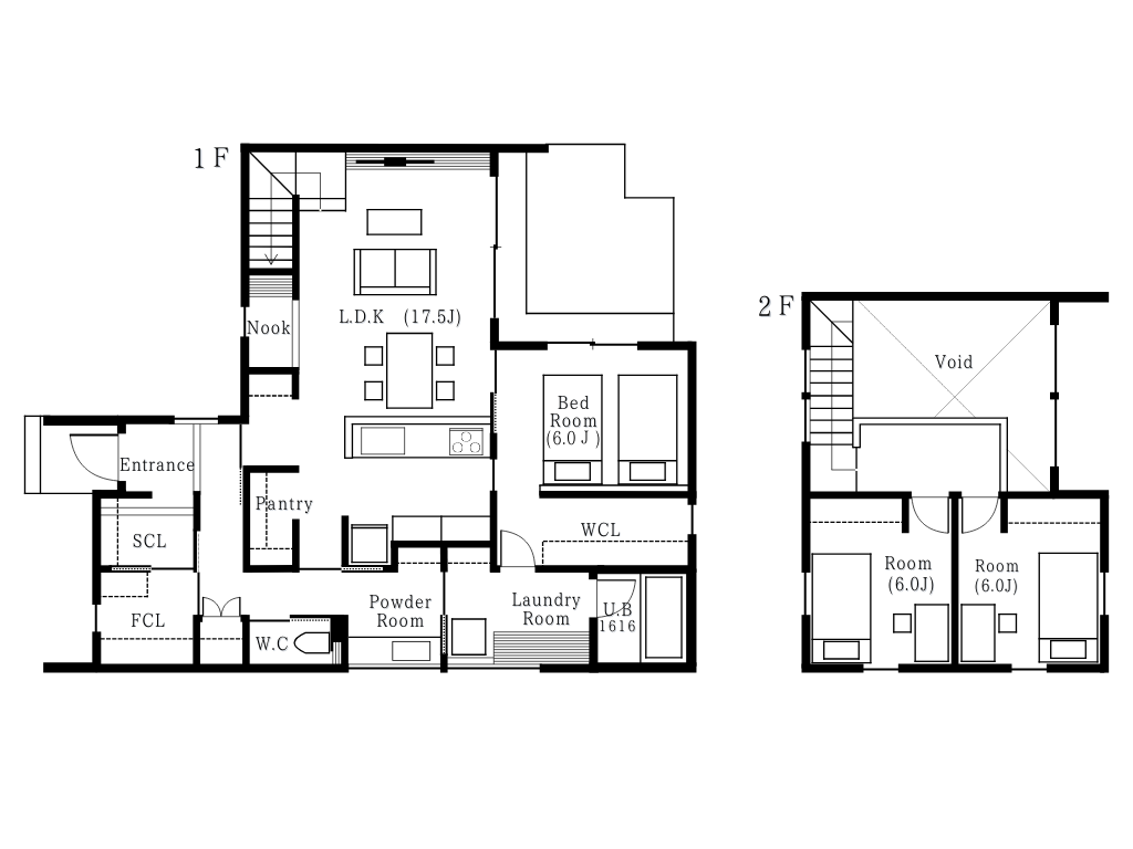
LDKや寝室、水回りを1階に集約した半平屋のような暮らし方
LDKや寝室、水回りを1階に集約した
“半平屋”のように暮らせる住まいをイメージ。
ワンフロアで生活が完結する、将来を見据えた間取りです。
家族構成やライフスタイルの変化にも柔軟に対応。
今も、これからも心地よく暮らせる住まいを表現しています。
2Fの部屋の使い方の一例
2Fの部屋の使い方としての一例です。
子ども部屋として使用
※写真の家具はイメージ画像です
Lykkeの間取り

Q
小さい子ども連れでも参加できますか?
A
はい。お子様もぜひ一緒にご来場ください。
Q
しつこい営業はありませんか?
A
はい。しつこく営業することはありませんので、安心してご参加ください。
Q
家を建てるか迷っている段階ですが、参加していいですか?
A
はい。家を建てるか検討中の方、他社と比較中の方もご遠慮なくご参加ください。
Q
持っていくといいものはありますか?
A
図面や見積もり、メジャーなどがあればイメージの確認にお役立ていただけます。
Q
相談や見積もりなどは無料でできますか?
A
はい、もちろんご相談・お見積りは無料で承っております。
イベント概要
| タイトル | 冬暖かく、夏涼しいを体感する見学会 |
|---|---|
| 開催日時 |
2026年02月21日(土)〜2026年02月23日(月) 10:00〜17:00 |
| 開催場所 | 滋賀県長浜市平方町コンセプトハウスLykke |
| 会社ホームページ | https://www.nagajyu.jp/ |