予約可能日時
※日付を選ぶと予約時刻を選択できるようになります。
見どころ
『憧れのアーリーアメリカン』モデルハウス分譲中!
「あなたの憧れの暮らしを叶えられる街」

藤代工務店のコンセプト
背景

断熱性能について

設計の安全性

藤代工務店の特長
LINE登録のお願い
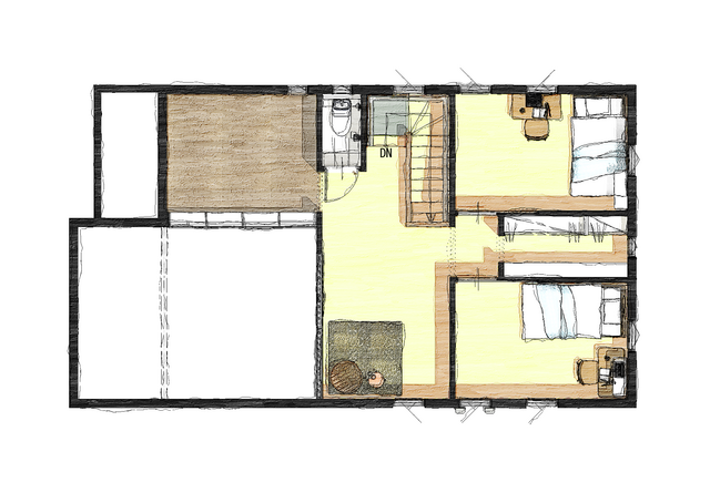
モデルハウスの見どころ
2階のフリーギャラリースペース
未来を見据えた1.5階の使い方
まるごとホームランドリー
レジリエンスとしての間取り


家庭用15畳のファンヒーター1台で、家中が温まりました。
暖房をつけて1時間で外気温が9~10℃の時で室内は18℃、
その後20℃を越えて温まり、暑すぎで暖房を切ったほどです
■「神栖市ってどんなところ?」
■茨城県神栖市チャンネル(youtube)
・海×キャンプ×ピーマン?茨城県神栖市の魅力を紹介(←クリック)
・City of Kamisu 2019(ショートVer) ←クリック
・2021年住みよさランキング全国229位(県内7位)
・2021年財政健全度ランキングで全国8位(県内1位)
※出典:東洋経済新報社「都市データパック」
■周辺環境
神栖市役所 4,400ⅿ:車で約8分
警察署 3,000m:車で約6分
鹿島自動車教習所 1,500m:車で約3分
病院 白十字総合病院_2,700ⅿ:車で約6分、丸山歯科_330ⅿ:徒歩で約5分 いきすの森クリニック_560ⅿ:徒歩で約7分
商業施設 ドンキホーテ_2,300ⅿ:車で約5分、DCMホーマック_2,300ⅿ:車で約5分 ユニクロ_5,800ⅿ:車で約10分 他多数
大きな公園が近い 神栖中央公園_3,000ⅿ:車で約6分
パワースポット 息栖神社(東国三社)_900ⅿ:徒歩約12分
複合施設建設中 スーパータイヨー(旧ベイシア跡地)まで 3,000m:車で約6分
■子育て環境
こばと保育園_350ⅿ:約5分 大野原幼稚園_1,300ⅿ:約17分 大野原西小学校_1,500ⅿ:約19分 神栖第四中学校_950ⅿ:約12分
・保育所入所待機児童数 0人:1位(815市区中)
・預かり保育実施園数率-公立100.0% 1位(402市区中)
・長期休業期間中の預かり保育実施園数率-公立 100.0% 1位(397市区中)
・公立小中学校の耐震化率 100.0% 1位(815市区中)
参照)NTTレゾナント運営の不動産総合サイト goo住宅・不動産 住宅・不動産 > 地域情報 > 暮らしデータ > 茨城県 > 神栖市の暮らしデータ ←クリック
・若年世帯の移住・定住促進や子育て支援のための「かみす子育て住まいる給付金」
・神栖市新築住宅に対する固定資産税の減免制度
神栖市HPで詳細を確認できます←クリック
■分譲地の見どころ
・芝生の庭とラップサイディングのアメリカンハウスで統一された、そこにいるだけで心地よく過ごせる街並みのデザイン

●美しい街並みと楽しいコミュニティを実現するために一定のルールに沿って街づくりをしています。
●子供や友人と好きなことを一緒に楽しめるように、芝を敷き詰めアクセントにシンボルツリーを植えたオープンな庭。
●日常の暮らしを楽しむことはもちろん、時にはアウトドアでのんびりBBQや昼寝などを楽しむことのできるカバードポーチやウッドデッキのある暮らし
●足を延ばせば海や川など豊かな自然に囲まれた環境。
●自然とかかわることで安心してのびのびと子育てができる環境をの中で、「好きなことが似ている人々」が集うコミュニティで毎日を楽しみましょう。
・災害時などでライフラインが途切れた場合に「水」と「電気」と「ガソリン」を確保することがとても難しく、復旧までに時間がかかって、とても困るケースが多かったと思います。
ですから、ザ・パームテラス息栖では、日常から有事の際もご家族が家の中で暮らし続けられる街づくりをご提案しています。
そのため、
・敷地内の公演には住民や近隣の方が使える共用の井戸と竈門を設置
・全棟、太陽光発電システムの搭載をご提案(設置費用負担なしで10年後に自己所有となるのPPA制度を利用可能)。
・モデルハウス1号棟では、宅内の貯水タンクと太陽光発電とEV(電気自動車)を使った「家と自動車」双方向での電力確保(V2H)
自家消費分の電力を発電して電気自動車にためておくことで、有事の際にも電気を使って暮らせます。
・車の動力を電気にすることで、ガソリンが確保できなくても移動や運搬ができる
そんなご提案をしています。
敷地内に建っているモデルハウスを参考にしながら、イメージして決めていきましょう!
好きな気持ちを大切にする街並みをつくり、住民が快適に暮らせる環境を整えられる街づくりを目指しています。
お問い合わせはこちらまで。「パームテラスについて相談です」とお電話ください。
GLホーム神栖店
0299-77-8101
マップ
概要
| タイトル | パームテラス息栖アーリーアメリカンモデルハウス見学予約 |
|---|---|
| 開催日時 |
2024-05-20 ~
10:00~16:00(最終受付) |
| 開催場所 | 茨城県神栖市息栖 |
| 種別 | 予約制 |
| 種類 | モデルハウス |
| 会社ホームページ | https://www.fujishiro-m.com/ |
