予約可能日時
※日付を選ぶと予約時刻を選択できるようになります。
見どころ
茂原市のモデルハウスは
『ZERO-CUBE+BOX
SKYBALCONY』
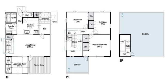
家族でバーベキューが楽しめるウッドデッキや、
客間や子どもとのふれあいスペースとして活用できる和室など、
+FUNで一番人気の「+BOX」と、
屋上にプライベートバルコニーを設けた「+SKYBALCONY」
ふたつの自由空間を足し算したプランです。


ぜひこの機会に、実際にご家族で快適に過ごせる
「+BOX」と「+SKYBALCONY」の自由空間をご体感ください。
“暮らし方をデザインする家”を、
実際に目で、手で、五感で感じていただける見学会です。
皆さまのご来場を心よりお待ちしております。

マップ
この開催は「予約承認制」です。
予約が承認されると住所が表示されます。
下記の地図は正しく現地を示していない可能性があります。
現地の場所詳細は予約確定メールに記載されるURLからご覧ください。
予約が承認されると住所が表示されます。
下記の地図は正しく現地を示していない可能性があります。
現地の場所詳細は予約確定メールに記載されるURLからご覧ください。
 千葉県茂原市八千代
間取り
概要
| タイトル | 茂原 モデルハウス | 
|---|---|
| 開催日時 | 2025-11-01 ~ 2026-01-31 10:00〜17:00 | 
| 開催場所 | 千葉県茂原市八千代 | 
| 種別 | 予約承認制 | 
| 種類 | モデルハウス | 
| 会社ホームページ | http://www.life-label.com/ | 
