《富山県中新川郡/T様邸内見会》日々を丁寧に。自分らしく過ごすための半平屋
「ゆったりとした時間と、心地よい空間に包まれる暮らし。」
静けさの中に流れる音と、ゆるやかに変わる光。
ピアノと本が似合う、大人のための平屋。
勾配天井が描く空の広がりと、大きな窓から望む穏やかな眺めが、
日常の中に豊かな余白をもたらします。
お気に入りの一冊を開き、音楽に耳を傾けながら過ごす午後。
そんな何気ない時間が、心を満たす贅沢に変わる――
自分らしく、上質に暮らすための住まいです。%E3%81%AE%E3%82%B3%E3%83%94%E3%83%BC%20(2).png)
見どころ
こんな方におすすめです!
- 将来のことを考えながら、ゆっくりお家づくりを進めたい方
- 使う材料や設備の特徴、メリット・デメリットを知って安心したい方
- 何から始めていいか分からず、不安に感じている方
- 家づくりの悩みや疑問を、一緒に解決したい方
グランドピアノが似合う、ゆとりのリビング
勾配天井が広がる開放的なリビングには、まるで美術館の一角のようにグランドピアノが美しく配置されています。
この住まいの特徴である壁一面の造作本棚には、お気に入りの本や旅行先で見つけた小物が並び、時間が経つたび、違う表情を見せてくれます。
広々とした空間で、心地よい音楽と共に豊かな時間を。特別なひとときを。
家事ラク動線で、毎日の暮らしがもっとスムーズに
キッチンから脱衣所、ファミリークローゼット、そして寝室へと
スムーズにつながる動線設計が特徴の住まいです。
この工夫された間取りにより、洗濯や収納作業がストレスフリーでラクに完結。
時間に余裕ができ、家族とのひとときや自分の時間を楽しむことが可能です。
この家事ラク動線は、忙しい毎日を支えてくれる頼れる存在に!
2階ホールのフリースペース
6.9帖の広さを誇る2階ホールのフリースペースは、多目的に活用できる自由な場所です。
スタディコーナーとして、家族の学びを支えるスペースとしても最適ですし、
趣味の空間として使うことで自分らしい時間を楽しむことができます。
家族の成長やライフスタイルの変化に柔軟に対応し、暮らしの幅を広げる機会をもたらします。
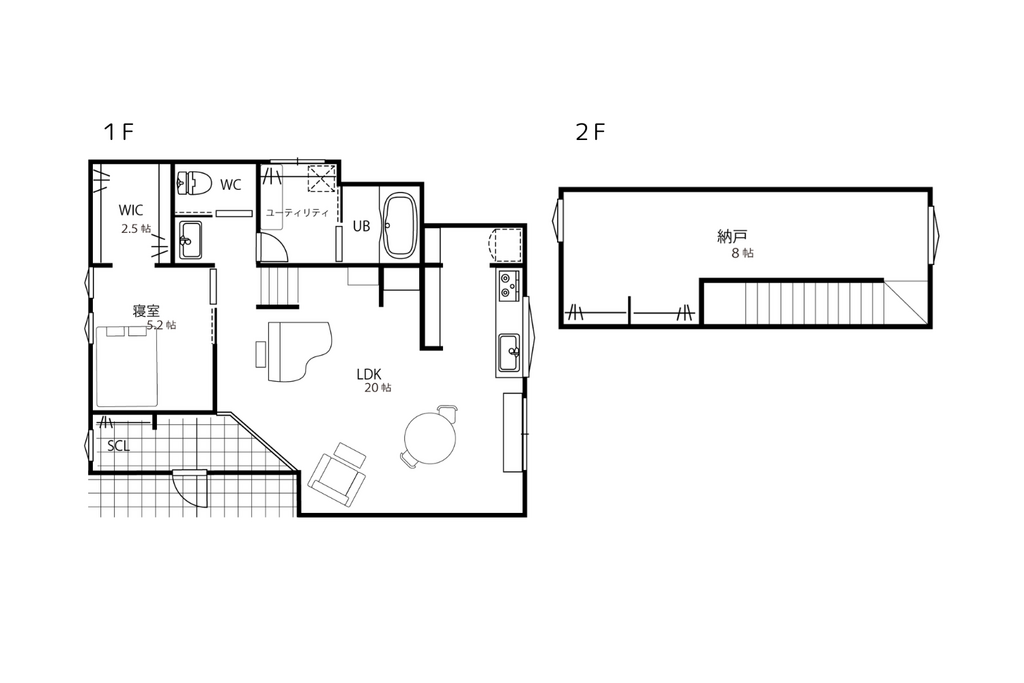
間取り図
イベント概要
| タイトル | 《富山県中新川郡/T様邸内見会》日々を丁寧に。自分らしく過ごすための半平屋 |
|---|---|
| 開催日時 |
2025年11月15日(土)〜2025年11月30日(日) 09:00〜19:00 |
| 開催場所 | 富山県中新川郡上市町法音寺 |
| 会社ホームページ | https://www.e-himawari.co.jp/ |
.png)