【富山市太郎丸本町/S様】二世帯で心地よく暮らすための半平屋。
二つの玄関がつくる、心地よい距離感の二世帯住宅。 一緒に暮らす安心と、ほどよい独立性を。
親世帯・子世帯、どちらの暮らしも無理なく守りたい。
そんな想いから生まれた、二世帯のための半平屋です。
世帯ごとに玄関を設けることで、
生活リズムや来客時の気兼ねをやわらかく解消。
同じ住まいの中で支え合いながら、
それぞれの毎日を大切に過ごせる住まいに仕上がりました。
%E3%81%AE%E3%82%B3%E3%83%94%E3%83%BC%20(2).png)
詳しい見どころはMAPの下部でご紹介
↓ ↓ ↓
完成見学会
見どころ
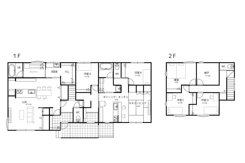
世帯ごとに設けた、二つの玄関
玄関をそれぞれに設けることで、
お互いの生活時間や来客動線に配慮した設計です。
同居の安心感はそのままに、
プライバシーもきちんと守れる住まいになっています。
半平屋ならではの、将来まで見据えた暮らしやすさ
主な生活を1階で完結できる間取りは、
これから先の暮らしにも無理なく寄り添います。
2階は個室中心の落ち着いた構成とし、
家族それぞれの時間も大切にできる設計です。
これから先の暮らしにも無理なく寄り添います。
2階は個室中心の落ち着いた構成とし、
家族それぞれの時間も大切にできる設計です。
家族が自然に集まる、ゆとりあるLDK
世帯を超えてつながるLDKは、
日々の食事や団らんをゆったり楽しめる広がりに。
視線の抜けや動線にも配慮し、
家族が心地よく集まれる空間に整えました。
日々の食事や団らんをゆったり楽しめる広がりに。
視線の抜けや動線にも配慮し、
家族が心地よく集まれる空間に整えました。
間取り図
イベント概要
| タイトル | 【富山市太郎丸本町/S様】二世帯で心地よく暮らすための半平屋。 |
|---|---|
| 開催日時 |
〜2026年04月05日(日) 09:00〜19:00 |
| 開催場所 | 富山県富山市太郎丸本町4丁目 |
| 会社ホームページ | https://www.e-himawari.co.jp/ |
.png)