【新築完成見学会】ガレージがある1.5階建ての家

静岡県浜松市中央区和合町88-59付近
2024年10月26日(土)〜2024年10月27日(日) 10:00〜17:00

予約可能日時

2025 12
1 - 2 - 3 - 4 - 5 - 6 -
7 - 8 - 9 - 10 - 11 - 12 - 13 -
14 - 15 - 16 - 17 - 18 - 19 - 20 -
21 - 22 - 23 - 24 - 25 - 26 - 27 -
28 - 29 - 30 - 31 -
:即予約可 残1~5 :即予約可(残りわずか) - :予約不可 × :予約一杯 :要問い合わせ (TEL: 053-416-1800

※日付を選ぶと予約時刻を選択できるようになります。

見どころ

10月26日(土)、27日(日) の2日間限定!

お施主様のご厚意で完成邸見学会を開催いたします!

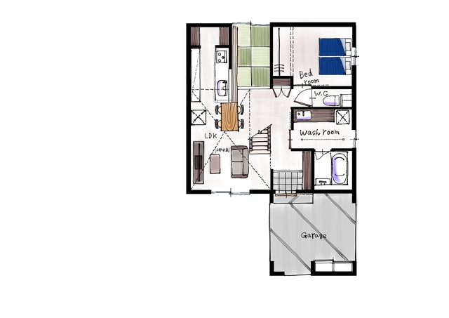
今回のお家は、【高性能】×【ガレージ】×【大人気の1.5階建て】

魅力がてんこ盛りのお家です♪

 

■愛車を美しく保つだけでなく、雨の日に屋根付きのテラスにも変身! 人類が1度は夢見るガレージハウス!

■ガレージ上を有効活用した、眺めの良い【まるで屋外リビング?!】広々バルコニー!

■高性能の証である外張り断熱で、エアコン1台で夏は涼しく冬は暖かい♪ 

■真壁づくりが叶える、木の調湿性が光るサラサラの空間!

 

レトロ可愛い【小上がりタタミスペース】や、木や珪藻土などの自然素材をふんだんに使用した、自然と溶け合うような【やわらかい暮らし】ができる空間デザインも必見です。

2階のラグジュアリーな空間使いも魅力的です。

リビングに匹敵する広さのホールは、書斎のように使うもよし、セカンドリビングにするもよし...。

どんな使い方ができるかは、住む人次第です。あなたならどんな空間にコーディネートしますか?

ぜひ実際にご見学しながら思いを巡らせてみてください♪

イベントタグ

  • 木の家
  • 3LDK
  • 和風
  • 30代向け
  • ロフト
  • ガレージ
  • 20代向け
  • 駐車場あり
  • 2人暮らし
  • フリースペース
  • 期間限定

マップ

静岡県浜松市中央区和合町88-59付近

大きな地図で見る>>>

間取り

  • 【新築完成見学会】ガレージがある1.5階建ての家の間取り画像
  • 【新築完成見学会】ガレージがある1.5階建ての家の間取り画像

概要

タイトル 【新築完成見学会】ガレージがある1.5階建ての家
開催日時 2024-10-26 ~ 2024-10-27
10:00〜17:00
開催場所 静岡県浜松市中央区和合町88-59付近
種別 予約制
種類 完成見学会
会社ホームページ

関連

予約日時を選択してください