予約可能日時
※日付を選ぶと予約時刻を選択できるようになります。
見どころ
「時間と共に味わいの出る高品質な家を低価格で提案することにより、快適な生活を提供する」
真壁づくり・ひのき・外張り断熱・無垢材を備え、1,000万円台から本物の木の家を提案しています。
これだけ木をふんだんに使って、これだけの性能で、この価格でできるのは、弊社だけで、絶対に真似できません!
サイエンスホーム霧島店の「霧島大屋根展示場」は期間限定で公開中です。
この機会に、サイエンスホームで最も人気の建物を是非、ご体感下さい。
マップ
 鹿児島県霧島市隼人町真孝
キャンペーン情報

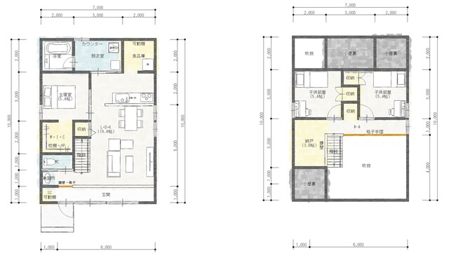
間取り
概要
| タイトル | サイエンスホーム鹿児島店・霧島店で人気No.1の建物【霧島大屋根展示場】 | 
|---|---|
| 開催日時 | 
2025-06-27 ~ 2025-09-29
 10:00〜17:00  | 
| 開催場所 | 鹿児島県霧島市隼人町真孝 | 
| 種別 | 予約制 | 
| 種類 | 展示場 | 
| 会社ホームページ | https://www.hinata-ie.com/ |