予約可能日時
※日付を選ぶと予約時刻を選択できるようになります。
VR
見どころ
12/7(土)・8(日)の二日間
会津若松市新横町分譲地内にて
全館空調搭載モデルハウスの体験販売会を開催いたします!
AM10:00-PM17:00 事前予約制

家中どこにいても温度差を感じることなく快適な空間で過ごせる
全館空調システム YUCACO。
夏涼しく、冬温かい快適な暮らしを実際に体験できる
体感型販売会となっております😊
全館空調搭載モデルハウスの見どころ

♦♦全館空調システム『YUCACO』♦♦

空調室の家庭用エアコン1台で、家の中を丸ごと冷暖房。
廊下や階段も、上下の温度差を感じることなく、
一年中春のような心地よい空間で生活できます。
♦♦リビングアクセス♦♦

リビングを経由して各部屋に移動する設計で、
家族同士が自然なコミュニケーションが取れます。
毎日のコンディションをお互いに確かめ合えるので安心です。
♦♦吹抜け♦♦

自然光が優しく差し込み、明るい空間を作る吹抜け。
開放的で広々としたリビングは風通しもよく、
心地よい時間を過ごせます。
♦♦回遊動線♦♦

1Fはぐるぐると回遊できる動線になっています。
水回りは洗面・脱衣所・キッチンとコンパクトな動線を取ることで、毎日の家事を効率よくラクにこなせます。
♦♦豊富な収納スペース♦♦

各所に細かく収納を配置しました。
どこに何を収納したのかわかりやすく使いやすいのがポイントです。
などなど…
このほかにも見どころがたくさんのモデルハウスです。
全館空調システムYUCACOとは

❶家中どこにいても快適空間
家庭用エアコン一台で全部屋の冷暖房ができ、玄関やトイレ、脱衣所まで家中が同じ温度に保たれるため、一年中どこにいても快適な生活が実現致します。
➋健康生活
換気・空気浄化・加湿・除湿を同時に行うことで新鮮な空気が常に巡回し、家族の健康を守ります。アレルギーの原因になる花粉やPM2.5なども強力に除去。
換気・空気浄化・加湿・除湿を同時に行うことで新鮮な空気が常に巡回し、家族の健康を守ります。アレルギーの原因になる花粉やPM2.5なども強力に除去。
➌経済性&省エネ
高断熱、高気密の高い住宅性能は 冷暖房費を大幅に低減します。
高断熱、高気密の高い住宅性能は 冷暖房費を大幅に低減します。
家中快適な温度に保たれるため、冬場は床暖房も必要ありません。
外気を室内に伝わらせない断熱性と室内の温度を外に逃がさない気密性で、24時間空調でも光熱費を抑えられます。
ご家族お誘い合わせのうえ、ぜひお気軽にご参加ください。
皆様のお越しをお待ちしております😊
【ご見学のお問い合わせはこちら】
※ご見学の際は予約サイトまたはお電話にて事前にご予約下さい。
大成ハウス株式会社 ☎0242-32-4300
マップ
福島県会津若松市新横町222-5
キャンペーン情報
🎁インスタグラムからご予約の方限定🎁
ギフトカード3000円分プレゼント!
※一家族様一回限りのプレゼントとなります。
※すでに当モデルハウスをご見学いただいているお客様は対象外となります。
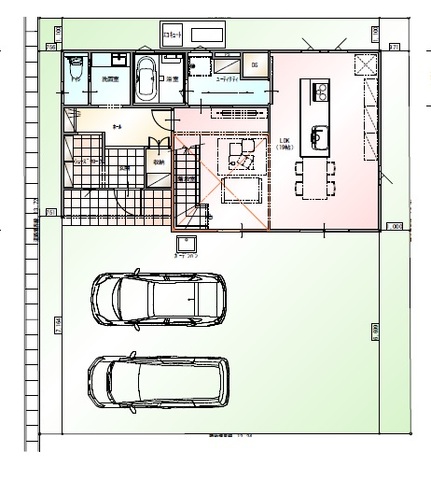
間取り
概要
| タイトル | 【12/7(土)-8(日)】全館空調搭載モデルハウス 体験見学会開催♪【会津若松市新横町】 |
|---|---|
| 開催日時 |
2024-12-07 ~ 2024-12-08
10:00〜17:00 |
| 開催場所 | 福島県会津若松市新横町222-5 |
| 種別 | 予約制 |
| 種類 | 完成見学会 |
| 会社ホームページ | https://taisei-house.net/ |