予約可能日時
※日付を選ぶと予約時刻を選択できるようになります。
見どころ
この快適さ、この性能がいま“3,380万円”で手に入ります!
地元で58年。住まいづくりを続けてきた上杉工務店が手がけた
高性能モデルハウスを、特別価格でご案内いたします。
豊岡市妙楽寺に誕生したこの住まいは、
家事ラク動線と省エネ性能を両立した、ZEH仕様のモデルハウス。
ソーラーパネル6kW、トリプルサッシ、全館換気システムを備え、
夏も冬も、家じゅう快適な室内環境を実現しています。
家事ラク動線と省エネ性能を両立した、ZEH仕様のモデルハウス。
ソーラーパネル6kW、トリプルサッシ、全館換気システムを備え、
夏も冬も、家じゅう快適な室内環境を実現しています。
今回、300万円のプライスダウンにより、
これまで以上に現実的な価格でのご検討が可能となりました。
これまで以上に現実的な価格でのご検討が可能となりました。
モデルハウスならではの仕様・設備も、そのままお引き渡し。
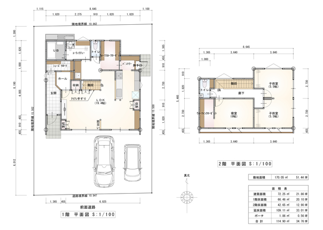
間取りは、暮らしやすさを考え抜いた
3LDK+2S(収納・ワークスペース)。
ユーティリティルームで洗濯が完結する家事動線や、
家族用と来客用を分けられる2way玄関など、
毎日の暮らしをラクにする工夫が随所に詰まっています。
3LDK+2S(収納・ワークスペース)。
ユーティリティルームで洗濯が完結する家事動線や、
家族用と来客用を分けられる2way玄関など、
毎日の暮らしをラクにする工夫が随所に詰まっています。
「いつかは、こんな家に住みたい」
その想いを、現実に近づけるチャンスです。
その想いを、現実に近づけるチャンスです。
完全予約制の内覧会となりますので、
この機会にぜひ、性能と心地よさを現地でご体感ください。
この機会にぜひ、性能と心地よさを現地でご体感ください。
\妙楽寺モデルハウスはZEH仕様です!/
とても省エネ性の高いお家となっています!
断熱等性能等級 6
[ Ua値:0.44 w/㎡・k C値:0.17 ㎠/㎡ ]
家の中が1年中快適な温度で過ごせ、光熱費などのランニングコストが安くなったり、災害時に電力を確保できるなどのメリットがあります。

ソーラーパネル6kw搭載で光熱費を削減!
年間光熱費が従来の住宅より約20万円お得に♪
20帖弱の広々リビング。ワンフロアの開放空間で快適な毎日

広々とした20帖弱のリビングは、南向きの大きな窓から自然光がたっぷりと差し込み、心地よいリラックス空間を演出します。家族や友人と過ごす時間が、より特別なものになることでしょう。
計画的な家事動線で奥様のストレスを軽減!

キッチン隣にあるパントリーや勝手口との連携で、ゴミ出しや買い物帰りの動線を最適化。ランドリールームとも近いため、家事がスムーズに進み、毎日の生活がもっと快適に。家事に追われることなく、家族との大切な時間を充実させることができます。
一つの空間で洗濯が完結「ランドリールーム」

1部屋だけで洗濯が完結する「ランドリールーム」。洗濯物を運ぶ手間が省け、時間を有効に使えるのが大きなメリットです。家事の時短を実現し、家族との時間を大切にすることができます。
🏠 販売価格
3,380万円(税込)
土地・建物(3LDK+2S)/外構工事・エアコン2台・カーテン付き
土地・建物(3LDK+2S)/外構工事・エアコン2台・カーテン付き
📅 内覧会について(予約制)
こちらの販売会は 完全予約制 となっております。
📍開催情報
【日程】1月24日(土)~2月1日(日) <9日間限定開催>
【時間】10:00~17:00
【場所】豊岡市妙楽寺
【予約】事前予約制(フォームまたはお電話にて)
※人気エリアのため、ご希望日時が重なる場合は調整をお願いすることがあります。
※販売中につき、成約済の際はご了承ください。
🏡 こんな方におすすめ
- 光熱費を抑えながら快適に暮らしたい
- 家事がラクになる間取りを体感したい
- ZE H仕様や省エネ住宅に興味がある
- 新築を建てるより、完成物件をすぐに見たい
- 引っ越しの時期が決まっている
妙楽寺の落ち着いた住環境で、
快適な暮らしを実現できるモデルハウスです。
実際の住み心地や空間の広さを、ぜひ現地でご体感ください。
快適な暮らしを実現できるモデルハウスです。
実際の住み心地や空間の広さを、ぜひ現地でご体感ください。
皆さまのご来場を心よりお待ちしております。
マップ
兵庫県豊岡市妙楽寺
キャンペーン情報
予約来場
キャンペーン実施中!
キャンペーン実施中!
ご予約いただくと最大10,000円分のQUOカードプレゼント!

< STEP 1 >
事前予約&見学会場ご来場 で 3,000円分
(※来場アンケート・SNSフォローをして頂く必要があります)
< STEP 2 >
個別セミナー参加 or
土地案内 or
現地調査 のいずれかで 3,000円分
< STEP 3 >
プラン作成 で 4,000円分
最大 10,000円分 の QUOカード PRESENT!
※新規のお客様に限ります
物件概要
一戸建て 物件概要
| 所在地 | 豊岡市妙楽寺 | 地目 | 宅地 |
|---|---|---|---|
| 用途地域 | 第一種住居地域 | 建ぺい率 | 60% |
| 容積率 | 200% | 土地面積 | 170.05m²/51.44坪 |
| 建物面積 | 114.9m²/34.76坪 | 総戸数/所有持分 | 戸 |
| 今回販売戸数 | 1 戸 | 最多販売価格帯 | |
| 販売価格 | 3680.0 万円(税込) | 価格に含まれる負担金 | なし |
| 設備概要 | 上下水道、関西電力、プロパンガス | 維持・管理費 | なし |
| 建物構造/階建 | 木造2階建て | 間取り | 3LDK+2CL |
| 築年月 | 2024年11月23日 / 完了予定 | 建築確認番号 | 第中HK24-30056号 |
| 道路幅員 | 南側4m1方 | 私道負担 | なし |
| 交通 | 全但バス「妙楽寺」バス停より徒歩1分 | 学区 | 八条認定こども園:車3分、八条小学校:徒歩10分、豊岡南中学校:徒歩19分 |
| 取引態様 | 売主 | 媒介(仲介)手数料 | |
| 引渡 | 相談 | 特定事項 | なし |
| 備考 | 土地・建物・地盤補強・外構工事・エアコン2台・レースカーテン含む | 建設業許可番号 | 兵庫県知事(般4)第650585号 |
| 宅地建物取引業免許番号 | 兵庫県知事(12)第650011号 | 建築士事務所登録番号 | 一級建築士事務所 第01A03935号 |
| 所属団体名及び加盟する公正取引協議会 | (一社)兵庫県宅地建物取引業協会会員・(公社)近畿地区不動産公正取引協議会加盟 | 公開日 | 2025年11月29日 |
| 更新日 | 2026年01月07日 | 次回更新予定日 | 2026年01月21日 |
間取り
概要
| タイトル | 【300万円プライスダウン】妙楽寺モデルハウス販売内覧会 |
|---|---|
| 開催日時 |
2026-01-24 ~ 2026-02-01
10:00〜17:00 |
| 開催場所 | 兵庫県豊岡市妙楽寺 |
| 種別 | 予約制 |
| 種類 | モデルハウス販売会 |
| 会社ホームページ | https://uesugi-koumuten.com/ |