予約可能日時
※日付を選ぶと予約時刻を選択できるようになります。
見どころ
\GW特別企画/
ゴールデンウィークの6日間!3棟同時見学会開催!
このGW、あなたとご家族の理想の住まいを見つけるチャンスです!
「妙楽寺モデルハウス」は「木」のぬくもりに包まれた心地よい暮らしを実現する住まいです。
デザイン性高く「木」×「アイアン」の調和で魅せる高デザイン空間。
そしてZEH仕様で家の中が1年中快適な温度で過ごせ、光熱費などのランニングコストが安くなります。
開催日時: 5/1日(木) ~ 6日(火) <6日間開催>
開催時間: 10:00~17:00
開催会場: 豊岡市妙楽寺
見学したいモデルハウスを事前に予約していただければ、スムーズにご案内いたします。
他のモデルハウスも見学したい場合は、担当者にお申し付けください。
あなたの住まい探しを全力でサポートいたします!
妙楽寺モデルハウスはZEH仕様です!
とても省エネ性の高いお家となっています!
断熱等性能等級 6
[ Ua値:0.44 w/㎡・k C値:0.17 ㎠/㎡ ]
家の中が1年中快適な温度で過ごせ、光熱費などのランニングコストが安くなったり、災害時に電力を確保できるなどのメリットがあります。

20帖弱の広々リビング。ワンフロアの開放空間で快適な毎日

計画的な家事動線で奥様のストレスを軽減!

一つの空間で洗濯が完結「ランドリールーム」

見学会では、実際の生活を想像しやすいように家具やインテリアを配置し、リアルな住空間を演出します。お友達やご家族をお誘い合わせの上、ぜひご参加ください。実際に触れて、感じて、そしてあなたの理想の住まいを見つける第一歩を踏み出しましょう。
マップ
キャンペーン情報
キャンペーン実施中!
ご予約いただくと最大10,000円分のQUOカードプレゼント!

< STEP 1 >
事前予約&見学会場ご来場 で 3,000円分
(※来場アンケート・SNSフォローをして頂く必要があります)
< STEP 2 >
個別セミナー参加 or
土地案内 or
現地調査 のいずれかで 3,000円分
< STEP 3 >
プラン作成 で 4,000円分
最大 10,000円分 の QUOカード PRESENT!
※新規のお客様に限ります
物件概要
| 所在地 | 豊岡市妙楽寺 | 地目 | 宅地 |
|---|---|---|---|
| 用途地域 | 第一種住居地域 | 建ぺい率 | 60% |
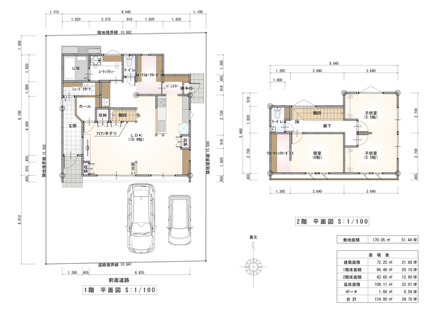
| 容積率 | 200% | 土地面積 | 170.05m²/51.44坪 |
| 建物面積 | 114.9m²/34.76坪 | 総戸数/所有持分 | 戸 |
| 今回販売戸数 | 1 戸 | 最多販売価格帯 | |
| 販売価格 | 3680.0 万円(税込) | 価格に含まれる負担金 | なし |
| 設備概要 | 上下水道、関西電力、プロパンガス | 維持・管理費 | なし |
| 建物構造/階建 | 木造2階建て | 間取り | 3LDK+2CL |
| 築年月 | 2024年11月23日 / 完了予定 | 建築確認番号 | 第中HK24-30056号 |
| 道路幅員 | 南側4m1方 | 私道負担 | なし |
| 交通 | 全但バス「妙楽寺」バス停より徒歩1分 | 学区 | 八条認定こども園:車3分、八条小学校:徒歩10分、豊岡南中学校:徒歩19分 |
| 取引態様 | 売主 | 媒介(仲介)手数料 | |
| 引渡 | 相談 | 特定事項 | なし |
| 備考 | 土地・建物・地盤補強・外構工事・エアコン2台・レースカーテン含む | 建設業許可番号 | 兵庫県知事(般4)第650585号 |
| 宅地建物取引業免許番号 | 兵庫県知事(12)第650011号 | 建築士事務所登録番号 | 一級建築士事務所 第01A03935号 |
| 所属団体名及び加盟する公正取引協議会 | (一社)兵庫県宅地建物取引業協会会員・(公社)近畿地区不動産公正取引協議会加盟 | 公開日 | 2025年04月05日 |
| 更新日 | 2025年05月01日 | 次回更新予定日 | 2025年05月15日 |
間取り
概要
| タイトル | \GW3棟同時見学会/【豊岡市妙楽寺モデルハウス】 |
|---|---|
| 開催日時 |
2025-05-01 ~ 2025-05-06
10:00〜17:00 |
| 開催場所 | 兵庫県豊岡市妙楽寺 |
| 種別 | 予約制 |
| 種類 | モデルハウス |
| 会社ホームページ | https://uesugi-koumuten.com/ |