予約可能日時
※日付を選ぶと予約時刻を選択できるようになります。
見どころ
『平屋のようなゆとりをうむ建売住宅』
島根県松江市東生馬町[グリーンテラス東生馬]団地内に、限定一棟の建売住宅が完成致しました!!
実際に触れて、見て、感じていただき、
新しい住まいについてのイメージを膨らませていただけます。
この機会に、ぜひご家族でお越しください。
■物件情報
「こだわりの間取り」と
「充実の設備」で快適な暮らしを実現
幼稚園や松江市立生馬小学校が1㎞圏内にあり、子育て世帯におすすめな立地です。城北西通りにも出やすく、スーパーやコンビニ・ドラックストアなどが比較的近くに揃っているのもポイント!住宅地内に緑地が整備されていることもあり、緑豊かな環境に囲まれながら暮らすことができます。

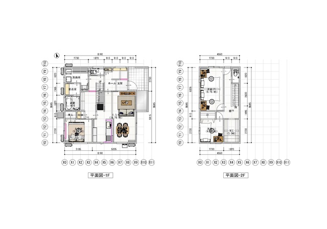
勾配天井・梁見せ天井で広がりをみせた
16帖以上の梁を見せた勾配天井の大空間LDKで、ご家族との寛ぎの時間をゆったりと過ごせます。南東にリビングをレイアウトすることで朝日が降り注ぐ明るい空間となります。キッチンの立ち上がりを高くすることで、調理中の手元やシンク・コンロなどをリビングやダイニングから隠すことができ、空間をスッキリと見せたり、インテリアにもこだわりやすくなります。
水回りを集約させた家事ラクプラン
洗面室と脱衣室を分けた家事ラクプランで、毎日の家事をスムーズにこなせます。作業工程が長い「洗濯物」も完結にこなせれるようにランドリールームは広めに確保し、①洗う→②干す(独立洗面室を利用)→③畳むしまう(棚ショーケースも置ける広さ!)を一貫して行えます。
LDKとは別の1階の室内
小さなお子様がいるご家族にも安心の「1階主寝室プラン」を採用しました。過ごす家族に順応した間取りです。廊下を有効活用して作るウォークスルークローゼットは、限られた空間を最大限に活かせるだけではなく、水周りやリビングなどと繋ぐことで、各部屋への動線を短縮し、スムーズに移動できるようになります。忙しい朝や帰宅時なども、ストレスなく移動できるのがポイントです。今回はクローゼットだけではなく、階段下を利用したカウンターも設けました。こちらでは、身支度をしたりする作業スペースとして活用できます。
ご見学方法|お子様連れ歓迎
.jpg)
マップ
物件概要
| 所在地 | 島根県松江市東生馬町42-35、38-336 | 地目 | 宅地 |
|---|---|---|---|
| 用途地域 | 市街化調整区域 | 建ぺい率 | 60 |
| 容積率 | 100 | 土地面積 | 201.99m²/60.1坪 |
| 建物面積 | 110.75m²/33.5坪 | 総戸数/所有持分 | 1 戸 |
| 今回販売戸数 | 1 戸 | 最多販売価格帯 | |
| 販売価格 | 3600.0 万円(税込) | 価格に含まれる負担金 | - |
| 設備概要 | 電気:中国電力 上水道:公営 排水:公共下水 ガス:オール電化 | 維持・管理費 | - |
| 建物構造/階建 | 木造二階建て | 間取り | 3LDK+WIC |
| 築年月 | 2024年08月30日 / 完了 | 建築確認番号 | 第05-45号 |
| 道路幅員 | 東側 公道幅員6.0m | 私道負担 | なし |
| 交通 | - | 学区 | 松江市立生馬小学校(700m)、松江市立第一中学校(3.4㎞) |
| 取引態様 | 売主 | 媒介(仲介)手数料 | |
| 引渡 | 即時 | 特定事項 | - |
| 備考 | 建設業許可番号 | 国土交通大臣許可(般-7)第25584号 | |
| 宅地建物取引業免許番号 | 国土交通大臣(2)第9150号 | 建築士事務所登録番号 | 2級建築士事務所 島根県知事登録第(1)5120号 |
| 所属団体名及び加盟する公正取引協議会 | (公社)全日本不動産協会会員 | 公開日 | 2024年10月04日 |
| 更新日 | 2024年10月20日 | 次回更新予定日 | 2024年11月03日 |
間取り
概要
| タイトル | 「平屋」のような ゆとりをうみだす建売住宅見学会 |
|---|---|
| 開催日時 |
2024-10-19 ~ 2024-10-20
10:00〜17:00 |
| 開催場所 | 島根県松江市東生馬町42-35、38-336 |
| 種別 | 予約制 |
| 種類 | 完成見学会 |
| 会社ホームページ | https://housing-staff.co.jp/cleverlyhome/ |