夏のマイホームフェスタin四万十具同(モデルハウス初お披露目)

高知県四万十市具同
2025年07月26日(土)〜2025年07月28日(月) 10:00〜17:00

予約可能日時

2025 12
1 - 2 - 3 - 4 - 5 - 6 -
7 - 8 - 9 - 10 - 11 - 12 - 13 -
14 - 15 - 16 - 17 - 18 - 19 - 20 -
21 - 22 - 23 - 24 - 25 - 26 - 27 -
28 - 29 - 30 - 31 -
:即予約可 残1~3 :即予約可(残りわずか) - :予約不可 × :予約一杯 :要問い合わせ (TEL: 088-823-5265

※日付を選ぶと予約時刻を選択できるようになります。

見どころ

クレバリーホーム高知店 初のモデルハウス見学会

ひとクラス上の暮らしを、自然の温もりとともに体感しませんか?

クレバリーホーム高知店では、豊かな暮らしを提案するため、初のモデルハウス見学会を開催いたします。このモデルハウスでは、上質で快適な「ひとクラス上の暮らし」を、自然の風合いを生かしたナチュラルテイストの内装とともにお楽しみいただけます。

 

 

見どころ

  • 高品質タイル外壁
    耐久性と美しさを兼ね備えたクレバリーホーム自慢のタイル外壁が、住まいの価値を引き立てます。

  • 安心の耐震性能
    地震に強い家づくりを実現するため、最新の耐震技術を採用し、家族の安全を守ります。

  • 省エネ設計
    高断熱・高気密構造で、四季を通じて快適な住環境を提供。エネルギー効率の良さも魅力です。

  • ナチュラルテイストの内観
    自然素材をふんだんに取り入れた温かみのある内装デザインが、日々の生活に癒しをもたらします。

 

イベント詳細

【四万十市具同】3棟同時オープンハウス開催!
\事前予約受付中!ご家族そろってぜひご来場ください/
クレバリーホーム高知店&はりまや住宅による、3棟同時オープンハウスを開催!
家づくりの参考になるリアルサイズの住宅を、見て・触れて・体感できるチャンスです。
 
📍場所:四万十市具同236(マルナカ四万十店西隣)
📅日程:7月26日(土)〜7月28日(月)
🕙時間:10:00〜17:00
🚗駐車場完備(無料)
 
【スタンプラリー&抽選会】
3棟すべてをご見学いただいた方は、豪華賞品が当たる「ガラガラ抽選会」にご参加いただけます!
🎯1等:お米5kg
🥈2等:お米1kg
🥉3等:トイレットペーパー
🎁4等:ティッシュボックス
💧5等:ウェットティッシュ
※賞品はなくなり次第終了となります。
 
【ご来場特典】※数に限りがあります
✔サランラップや洗剤など、暮らしに役立つ日用品
✔お子様にはお菓子の詰め合わせ
✔ここだけの未公開土地情報もご用意!
お子様も楽しめるキャラクターすくいなどのイベントも開催予定!
ぜひこの機会に、ご家族みなさまでご来場ください。
 
✨【さらに嬉しい特典!】✨
期間中に商談~ご成約いただいたお客様には、豪華プレゼントをご用意しております!
このチャンスをお見逃しなく!

 

「ひとクラス上の暮らし」をご体感いただけるこの機会をお見逃しなく。皆様のご来場を心よりお待ちしております。

マップ

下記の地図は正しく現地を示していない可能性があります。
現地の場所詳細は予約確定メールに記載されるURLからご覧ください。

高知県四万十市具同

大きな地図で見る>>>

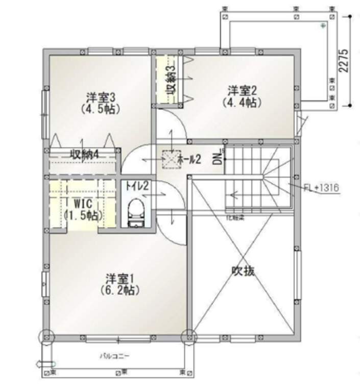
間取り

  • 夏のマイホームフェスタin四万十具同(モデルハウス初お披露目)の間取り画像
  • 夏のマイホームフェスタin四万十具同(モデルハウス初お披露目)の間取り画像

概要

タイトル 夏のマイホームフェスタin四万十具同(モデルハウス初お披露目)
開催日時 2025-07-26 ~ 2025-07-28
10:00〜17:00
開催場所 高知県四万十市具同
種別 予約制
種類 イベント
会社ホームページ https://cleverly-kochi.com/

関連

予約日時を選択してください