大和ハウス【OHKハウジング】

岡山県岡山市中区浜597-7
〜開催中 10:00〜17:00 ※日によって異なります

予約可能日時

2025 10
1 - 2 - 3 - 4 -
5 - 6 - 7 - 8 - 9 - 10 - 11 -
12 × 13 - 14 - 15 - 16 17 18
19 20 残2 21 - 22 - 23 24 25
26 27 残2 28 - 29 - 30 31
:即予約可 残1~2 :即予約可(残りわずか) - :予約不可 × :予約一杯 :要問い合わせ (TEL: 086-273-3733

※日付を選ぶと予約時刻を選択できるようになります。

見どころ


高耐震・高断熱で快適な大空間を実現したxevoΣ


xevoΣは軽量鉄骨造ながら持続型耐震工法により繰り返しの大きな地震に耐えることができ、3重の断熱材で高い省エネ性能を実現。また、外張り断熱通気外壁や4層コーティングの外壁塗装でライフサイクルコストを軽減することにより、長く住み続けるほどコストパフォーマンスに優れます。
CMでおなじみの2m72cmの高天井を標準とし、ロースタイルリビングは3m8cm。また最大6.3mの大開口で明るく開放的なLDKを実現しています。
主婦のスタッフが商品開発しているため、子育て・家事の観点からお掃除もしやすく、片付けやすい収納提案など、お忙しいご夫婦が生活しやすいご提案が盛りだくさんです。ハード面だけでなく、住まい方・生活提案をさせて頂くのもダイワハウスの魅力のひとつです!ご自分だけのこだわりの邸宅をダイワハウスと一緒に実現しませんか?

マップ

岡山県岡山市中区浜597-7

大きな地図で見る>>>

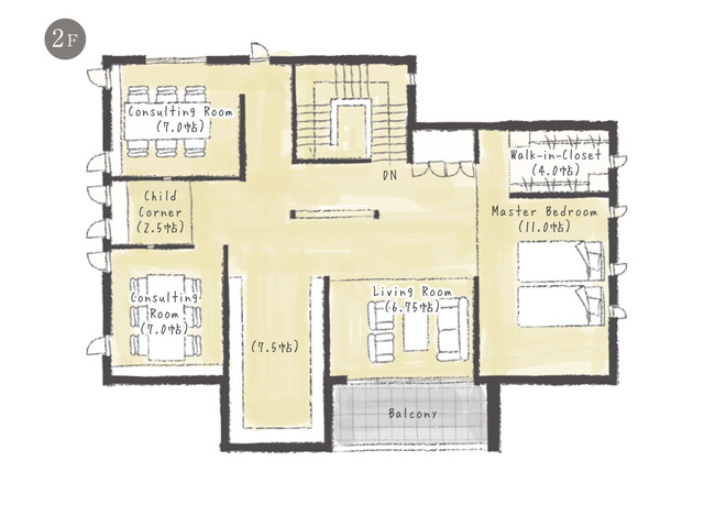
間取り

  • 大和ハウス【OHKハウジング】の間取り画像
  • 大和ハウス【OHKハウジング】の間取り画像

概要

タイトル 大和ハウス【OHKハウジング】
開催日時 2024-12-14 ~
10:00〜17:00 ※日によって異なります
開催場所 岡山県岡山市中区浜597-7
種別 予約制
種類 モデルハウス
会社ホームページ https://www.daiwahouse.co.jp/jutaku/tenji/tenji.html?cd=1146

関連

予約日時を選択してください