予約可能日時
※日付を選ぶと予約時刻を選択できるようになります。
見どころ
塩釜市袖野田町にて、住まいの見学会を開催いたします🎊
住宅に関心のある方、住宅購入を検討している方、ぜひこの機会にご来場ください❕
当日は、実際にお住まいになられるお客様宅を見学することができます❕
最近のトレンドを取り入れた最新の建物となりますので、実際に見て楽しんでいただきたいと思っております🏠
また、当店のスタッフがお客様のご質問にお答えする時間も設けておりますので、気になることがあればお気軽にお尋ねくださいませ💁🏻♂️💁🏻♀️
この見学会は、住宅購入を検討している方にとっては、とても貴重な機会です🏠👀
当店の施工現場を見学することで、住宅の建築プロセスについて詳しく知ることができ、建築に関する知識を深めることができます!!
また、当店の住宅にご興味をお持ちの方には、完成したお宅を実際にご覧いただくことができるため、より具体的なイメージを持つことができると思います🤔
この見学会には事前予約が必要です📱❕
多くの方のご来場をお待ちしております🙇🏻♂️🙇🏻♀️
アイフルホームが目指す家づくり
1984年5月に創業したアイフルホームは、
今年で40周年を迎えます。
2008年からキッズデザイン思想
「こどもにやさしいはみんなにやさしい」を掲げ、
「子育てしやすい家No.1」を目指して
住まいづくりを進めてきました。


アイフルホーム仙台東店って
こんなお店です
アイフルホーム仙台東店としては、
30年以上の歴史があります。
今まで約400組のご家族の理想の住まいを実現する
お手伝いをさせていただいております。



\私たちがご案内します/
アイフルホーム仙台東店をご紹介
皆様のお家づくりのお手伝いをさせてください!


\お客様からいただいたご感想/
アイフルホーム仙台東店に実際にご来場いただいた
お客様からのお声です。
ぜひご見学の参考にしてみてください。



マップ
 宮城県塩竈市袖野田町
キャンペーン情報
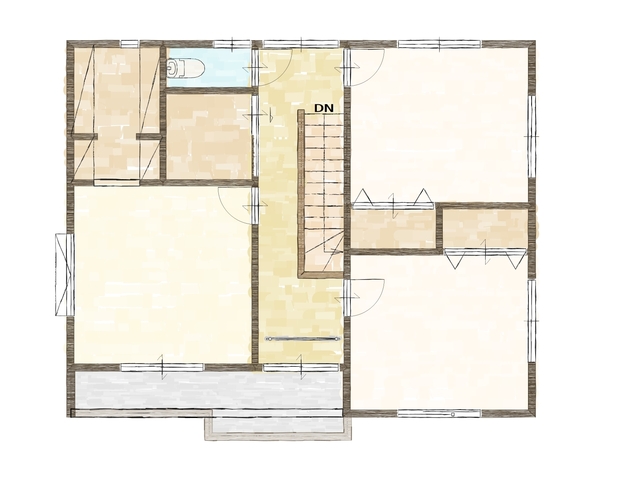
間取り
概要
| タイトル | 【塩釜市袖野田町】住まいの見学会 開催 | 
|---|---|
| 開催日時 | 
2024-10-12 ~ 2024-10-14
 10:00〜17:00 ※日によって異なります  | 
| 開催場所 | 宮城県塩竈市袖野田町 | 
| 種別 | 予約承認制 | 
| 種類 | 完成見学会 | 
| 会社ホームページ | https://www.all-eyefulhomenavi.com/itoukensetsu/sendaihigashi/index.html | 





